The restroom project on Alameda’s beach at Shore Line Drive and Grand Street has turned out to be a real pisser.
Construction of the new restroom began in early 2023, after years of planning and obtaining clearances. The project was expected to cost the East Bay Regional Park District about $300,000. New plumbing pipes were installed, dune fences erected, and rebar put in place to pour the slab. Delivery of the modular restroom was scheduled for April 18.
Then the project suddenly stopped. Passersby are wondering why.
The city, along with four other agencies, gave the contractor clearance for digging at the project site back in January. The city’s Public Works Department issued permits for encroachment and traffic control.
But prior to delivery of the restroom, managing the logistics for operating a crane in the street became complicated. The city had put in new concrete curbs since January, which required the crane operator to park further out in the street. “I cannot put the public at risk with such a heavy building right next to moving traffic, said Branum Spliethof, project manager for VNH Builders, in an email to the park district. “We need to discuss shutting the road down with the city for eight hours to do this work.”
In the process of amending the traffic-control plan to block the street, the Public Works Department for the first time raised a red flag, informing the park district that the restroom needed to be built about two feet higher.
According to Public Works Director Erin Smith, there was “initial confusion about the project location.” The city had mistakenly informed the park district that “city [building] permits were not needed,” said Smith. “Consequently, it was never forwarded for floodplain review.”
On June 22, the Public Works Department provided the park district with information needed to comply with floodplain requirements, including updated FEMA maps.
The existing concrete forms and plumbing will have to be redone and raised to comply with future flood projections. Now it is back to the drawing board for what initially was a simple restroom project.
Meanwhile, costs keep mounting. As of August 29, the contractor had billed the park district $15,000 for extra costs due to a four-month work stoppage. And the park district re-enlisted Siegfried Engineering, Inc., to provide new drawings for the restroom project for $10,000.
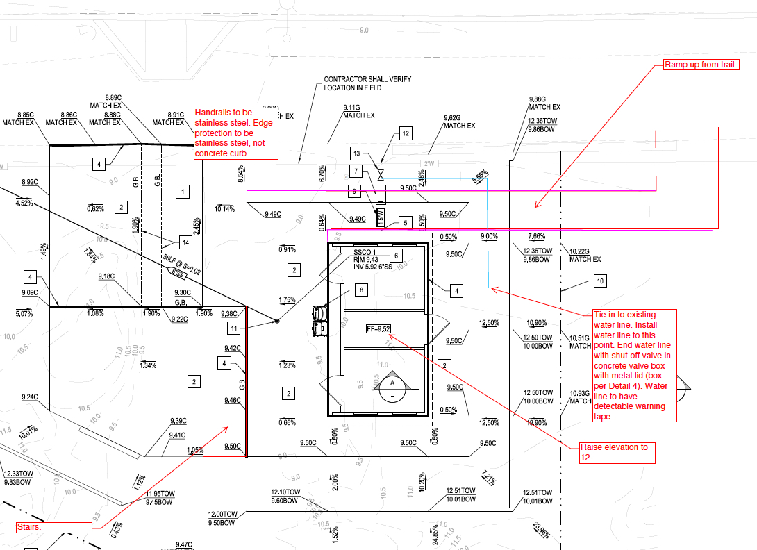
Major changes include raising the finished floor above the base flood elevation and adding stairs, an accessible ramp with handrails, a bench, and the layout for water service to the restroom. The work order included Siegfried’s responsibility to “respond formally to jurisdictional plan review comments, including City of Alameda floodplain review.”
No company has yet agreed to coordinate the permit for the crane and a traffic control plan to be used during the offloading of the prefabricated restroom, which was a major stumbling block the first time around.
It is unclear when the updated plans will be approved and construction resumed. In the meantime, passersby will have to hold their bladder until they reach a different restroom on the beach.
